FluidDraw P7

Smart drawing creation

FluidDraw is the comprehensive software for creating pneumatic and electric circuit diagrams.

FluidDraw

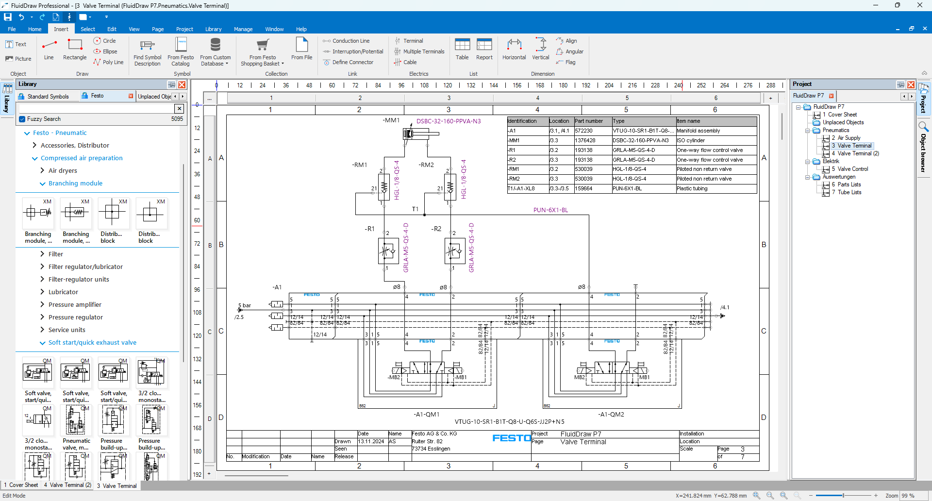
FluidDraw enables the creation of pneumatic and electrical circuit diagrams. The tool makes it easier to plan complete systems and integrate custom components. Users access the Festo catalogue and their own imported databases and can thus benefit from evaluation functions and created assembly drawings. The software is part of Festo Engineering Tools, which provides users with electronic and continuous support in the entire process, from planning, selection, design and ordering up to delivery and commissioning.

Standard-compliant symbol libraries

FluidDraw offers you a comprehensive selection of standard-compliant symbol libraries that make your planning processes considerably easier.

  • Complete, neutral pneumatics and hydraulics symbol library to ISO 1219-1
  • Complete, neutral electrical symbol library to DIN EN 60617 and ANSI/IEEE standards
  • Symbols for the creation of GRAFCET plans
  • Symbols for all products of the Festo catalog

Intelligent and automated equipment identification in accordance with DIN EN 81346-2 also enables you to implement your projects quickly and precisely.

Snapshot of the pneumatic library

Quick and intuitive creation of circuit diagrams

FluidDraw allows you to design circuits quickly and intuitively. The easy-to-use geometric drawing elements for 2D schematics allow you to create your designs effortlessly. You can create and archive your own symbols to meet your individual requirements. Thanks to the automatic connection of connection points (Autoconnect) and the ability to insert additional symbols without interrupting the connection lines, you save valuable time. In addition, the intelligent line routing with support points for direction changes ensures a clear and concise representation of your circuits.

Automatic connection of points in FluidDraw

Complete documentation

FluidDraw offers you powerful tools for reporting and documentation that optimally support your projects.

  • Bills of materials, Contact images, Terminal diagrams, Cable diagrams (wiring overview in tabular form)
  • User defined reports
  • Manage multiple sheets in one project with flexible tree structure
  • Support for easily creation of multilingual documentation
Example project with bill of material

Efficient interfaces

FluidDraw impresses with a variety of interfaces that enable seamless integration into your existing systems.

  • Import/export of Festo online basket.
  • Import/export of common graphic formats (BMP, DXF, GIF, JPG, PNG, TIF, WMF)
  • Import/export of your own product databases (TXT, CSV)
  • PDF export with cross references exported as hyperlinks
DXF import dialog in FluidDraw

FluidDraw P6 Icon

FluidDraw P7: Key features at a glance

  • Pneumatics and hydraulics symbol library
  • Electrical symbol library (DIN EN and ANSI/IEEE)
  • Offline Festo product catalog
  • Extensive drawing functions
  • Bill of materials
  • Support for large/multilanguage projects
  • User defined product databases
  • Dimensioning functions
  • Automatic equipment identification

Licensing

To use FluidDraw, you need a license, which is provided to you in the form of network licenses. You have the flexibility to either make these licenses available centrally in the network for all connected PCs or to install them permanently on specific PCs and notebooks.

With the FluidDraw 365 annual subscription, you always benefit from the latest version of the software. This subscription not only includes upgrades to version P8 (or higher), but also all updates within version P7. The license is valid for one year and is automatically renewed. You can cancel the subscription at any time. The subscription ensures that you always work with the latest functionality and improvements.

Order now or try it for free

FluidDraw is distributed worldwide by Festo SE & Co. KG. If you are ready to optimize your projects with FluidDraw, you can access the Festo order page via the adjacent link.

Would you like to test FluidDraw intensively before you buy? No problem! The adjacent link will take you to our download area, where you can download a demo version of FluidDraw. This gives you the opportunity to explore the software extensively and convince yourself of its advantages before you make a decision.

Educational-License (Version 5)

Students and teachers of an educational institution, providing a proof of eligibility, can request an educational license for the previous version FluidDraw 5 that is valid for one year.

Currently the educational version is not available as version 7.

Updates

If you already own a license for FluidDraw P7, or an erlier version, we provide all necessary updates, to keep your FluidDraw installation up to date, in our download section.